Bouw eerst de twee zijwanden. Boor hiervoor in beide platen (2) elk 4 schroefgaten aan elke smalle zijde met een diameter van 4 mm en met een afstand tot de rand van de korte zijden van 20 mm; de afstanden tot de rand van de lange zijden zijn respectievelijk 65 mm aan de ene kant en 25 mm aan de andere kant. Plaats de eerste plaat (2) buitenkant flush en met een verspringing van 47 mm op de vlakke zijde van de eerste twee balken (1). Schroef de plaat vast met verzonken schroeven van 4,0x30 mm aan de balken. Doe hetzelfde met de tweede plaat (2) en de overige twee balken (1).
Bouw je eigen robotmaaier garage
Je gras wordt niet alleen gemaaid, maar echt getemd. Zorg ervoor dat jouw maaivriend beschermd is tegen weer en wind terwijl hij wacht op zijn volgende avontuur. Bouw gewoon een gezellige garage voor je robotmaaier. Wij laten je zien hoe, stap voor stap.

Dit heb je nodig voor je project
Voorbereiden op de robotmaaier garage
De grasmaaiergarage krijgt een stevige behuizing van
De platen kunnen het gemakkelijkst worden gesneden met een
Schilder de op maat gesneden balken voor de montage met een weer- en uv-beschermingsmiddel.
Pas de garage aan voor jouw grasmaaier robot
Het ontwerp van je robotgarage moet geschikt zijn voor jouw grasmaaier robot. Voor grasmaaierrobots die zijdelings parkeren, is deze garage in deze vorm niet geschikt. Controleer ook de opgegeven afmetingen in deze bouwhandleiding, zodat jouw grasmaaier robot met zijn oplaadstation comfortabel in de grasmaaierrobotgarage past.
Let bij het leggen van de begrenzingskabel erop dat de grasmaaier robot bij het in- en uitparkeren de garage niet raakt.

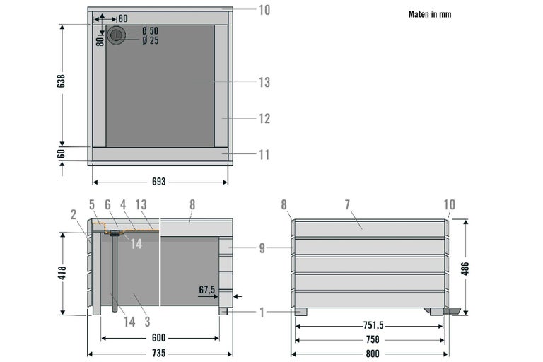
| Nr. | Stuks | Afmetingen |
|---|---|---|
| 1 | 4 | Kanthout 40x60x418 mm |
| 2 | 2 | Zeefdruk multiplexplaat 8x751,5x418 mm |
| 3 | 1 | Zeefdruk multiplexplaat 8x722x418 mm |
| 4 | 1 | Zeefdruk multiplexplaat 8x751,5x680 mm |
| 5 | 2 | Kanthout 40x60x751,5 mm |
| 6 | 2 | Kanthout 40x60x560 mm |
| 7 | 10 | Ruitstrook 21x68x758 mm |
| 8e | 1 | Ruitstrook 21x68x735 mm |
| 9 | 8e | Ruitstrook 21x68x67,5 mm |
| 10 | 6 | Ruitstrook 21x68x735 mm |
| 11 | 2 | Ruitstrook 21x60x693 mm |
| 12 | 2 | Ruitstrook 21x60x638 mm |
| 13 | 1 | Vijverfolie 0,5x1000x1000 mm* |
| 14 | 1 | Zeefdruk multiplex paneel 8x100x100 mm |
*Eindsnijden tijdens montage
Garage bouwen
Bouw de zijwanden van de robotmaaiergarage
Boor de afvoeropening en monteer het dak
Op de plaat (4) wordt later de waterafvoer gemonteerd. Boor hiervoor een afvoeropening met een diameter van Ø 50 mm in de plaat, met een afstand van elk 80 mm tot de twee buitenranden. Boor vervolgens de schroefgaten voor met een diameter van Ø 4 mm, elk met een afstand van 20 mm tot de buitenranden. Zet de afgewerkte zijwanden met behulp van een assistent op. Richt de plaat (4) hier tussenin volledig flush met de balken (1) uit. Schroef de plaat vast met verzonken schroeven van 4,0x30 mm aan de balken.
Monteer de achterwand van de grasmaaier garage
Nu wordt de achterwand van de grasmaaier garage (3) gemonteerd. Boor hiervoor aan de rechter- en linkerkant vier schroefgaten met een diameter van Ø 4 mm en een afstand van 26 mm tot de buitenrand. Schroef de achterwand vast met verzonken schroeven van 4,0x30 mm vanaf de achterkant op de balken (1).
Houten frame verlijmen & ruitvormige latten zagen
De framehouten (5) en (6) worden met de plaat (4) en de zijwanden (2) verlijmd - gebruik daarvoor water- en uv-bestendige montagelijm voor buiten. Houd je aan de gegevens over verwerking en uithardingstijd op het gegevensblad van de lijm. Laat de lijm uitharden. In de tussentijd kunnen de ruitvormige latten voor de bekleding van de zijwanden worden gezaagd (zonder afb.). De latten (7) voor de beide zijwanden zijn even lang. De latten (8) en (9) voor de voorkant en de latten (10) voor de achterkant bedekken de latten van de zijwanden.
Als alternatief kunnen de latten in verstek, dus onder een hoek van 45°, worden gezaagd en samengevoegd. Voor deze verbindingstechniek worden de lengtes van de afzonderlijke latten aangepast aan de montagewijze: breedte buitenwand = lengte korte zijde van de ruitvormige lat.
Montage van de bekleding van de grasmaaier garage
Eerste ruitvormige latten bevestigen
Zijn alle ruitvormige latten (7–10) op maat gesneden? Lijm dan de eerste lat (10) met montagekleefstof op de achterwand, te beginnen aan de bovenkant - de lat steekt aan beide zijden en aan de bovenkant respectievelijk 21 mm uit. De bovenste overhang is noodzakelijk omdat later latten van dezelfde dikte erachter worden geplaatst. Laat de lijm minstens twee uur uitharden, dan is er een begin van stevigheid bereikt.
Tip voor lijmen
Om de latten te lijmen, kun je de behuizing op zijn zij leggen.
Afstandhouders op maat snijden
Ruitvormige latten worden altijd met een latafstand gemonteerd. Voor de montage van de vijf latten heb je vier afstandhouders nodig. Snijd de afstandhouders uit een 9 mm dikke MDF-plaat op de maat 690x40 mm.
Meer ruitvormige latten lijmen
Lijm nu de vier overgebleven ruitvormige latten (10) op de achterwand - met telkens een afstandhouder ertussen. Zo krijg je zonder veel moeite een gelijkmatig oppervlak. Laat de lijm zo lang uitharden tot een beginsterkte is bereikt en de latten niet meer kunnen verschuiven. Pas daarna de afstandhouders verwijderen.
De zijwanden van de maairobotgarage bekleden
Bekleed de beide zijwanden volgens hetzelfde principe met de ruitvormige latten (7): bovenaan met 21 mm overhang, vooraan gelijk met de voorkant van de behuizing en op stoot met de latten van de achterwand (10).
Garage-ingang bekleden
Monteer de bovenste ruitvormige lat (8) aan de voorkant - deze bedekt de zijlatten (7) aan beide zijden en sluit bovenaan gelijk met hen af. Nadat deze lat stevig is gelijmd, worden de twee stroken naast de garage-ingang bekleed. Lijm de korte rhombuslatten (9) rij voor rij met behulp van de afstandhouders, gelijk met de zijlatten (7) aan de buitenkant. Laat vervolgens de lijm uitharden.
Tip: Bescherming van ruitvormige latten
Ruitvormige latten van larikshout hebben geen extra verfbeurt nodig. Ze vergrijzen echter in de loop van de tijd. Om dit te voorkomen, kunnen de latten worden beschermd met een verflaag.
De afwatering van de maairobot garage voorbereiden
Zaag een houten plaat (14) met de afmetingen 100x100 mm en boor in het midden een gat met Ø 25 mm. Steek het slangverbindingsstuk met de schroefdraadzijde van onderen in het gat. B) Lijm de houten plaat (14) met montagelijm van onderen zo aan de plaat (4) dat het slangverbindingsstuk met de schroefdraad in het midden van het gat in plaat (4) zit. Verwijder het verbindingsstuk weer voordat de lijm uithardt.
Leg de vijverfolie uit en sluit de tuinslang aan
Snijd de vijverfolie zo groot dat hij in de uitsparing en zijdelings over de latten (5) en (6) kan worden gelegd. Bevestig de folie met de nietmachine op de latten. Snijd vervolgens de overtollige stukken af met een stanleymes en snijd met een kruissnede de opening voor de afvoer in de folie. Schroef nu van onderen het slangverbindingsstuk vast. Steek van onderen een stuk tuinslang met slangklem op de slangtuit en draai de slangklem met de hand vast. Leid de slang (later) aan de achterkant naar buiten.
Bedek de rand van de folie met stroken en plant planten
Tot slot wordt de folierand afgedekt met een frame van rhombuslatten. Snijd hiervoor met de tafelzaag de schuine randen van de rhombuslatten af - gebruik een duwstok! Daarna zijn de latten nog 60 mm breed. Lijm de latten vast aan de binnenkant van de uitstekende rhombuslatten. Het dak van de garage kun je vervolgens vormgeven met grind en onderhoudsvriendelijke tuinplanten.
Grasmaaier garage beplanten
Tip: Gebruik in plaats van ruitvormige latten vierkante latten
Heb je geen tafelzaag tot je beschikking? Dan kun je voor de bovenste afdeklijst in plaats van op maat gesneden ruitvormige latten normale vierkante latten gebruiken. Het nadeel hiervan is dat het hout niet identiek is aan de zijbekleding en, afhankelijk van het houttype, met een beschermende lak moet worden geverfd.
Je maairobotgarage is klaar, nu kun je hem beplanten. Vooral geschikt zijn rotstuinplanten. Belangrijk bij rotsplanten: meng de aarde met wat zand, zodat de luchtcirculatie gegarandeerd is - want de planten haten niets meer dan wateroverlast.
In het beste geval beplant je je maairobotgarage in het voorjaar. Zo hebben de planten genoeg tijd om sterke wortels te vormen tegen de volgende winter.



















