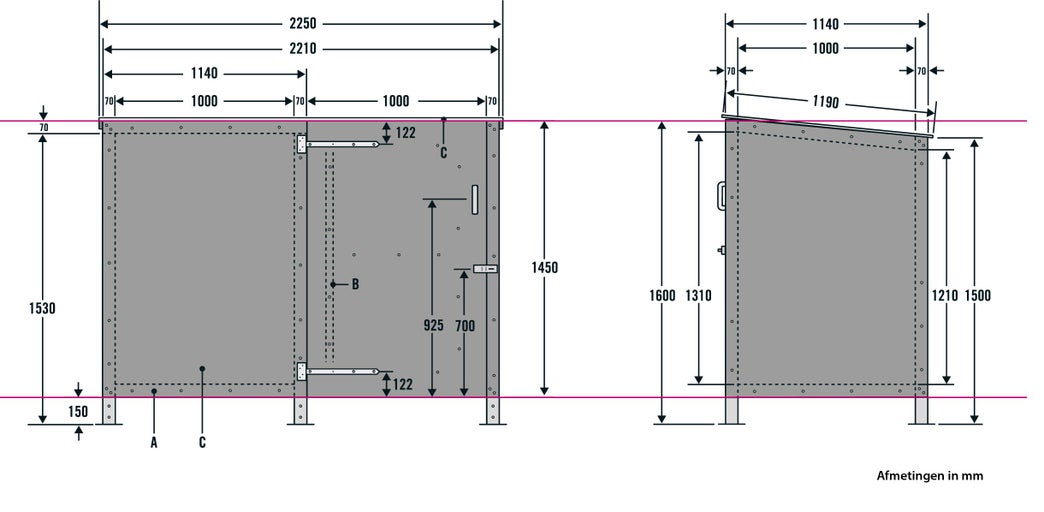
Lijn de zes paalhouders zorgvuldig uit, zodat de op maat gezaagde onderdelen later goed passen.
Plaats daarvoor een balk van constructiehout van 68 x 68 mm in elke paalhouder en plaats ze op een onderlinge afstand van elkaar (a) (in ons voorbeeld is dat 1000 mm). Plaats een stuk antislipmat onder elke paalhouder, zodat deze na het uitlijnen niet meer kan wegglijden. Lijn de paalhouders exact in een rechte hoek uit ten opzichte van de lijn waarop ze staan en ten opzichte van elkaar. Heb je geen grote winkelhaak bij de hand? Controleer vervolgens de haaksheid met de twee diagonalen (X). Als ze even lang zijn, dan is de opbouw haaks. Markeer vervolgens de boorgaten voor de pluggen.












