Tuinhuis Cubo 2 incl. vloer en raam antraciet, 226x234 cm
prijs — 1549,00 € * Alle prijzen zijn incl. BTW en excl. verzendkosten. per Stuks
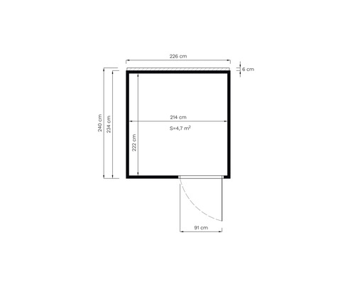
- Opstelmaat B x D zonder dakoverstek: 226 x 234 cm
- Wanddikte: 19 mm
- Sneeuwbelasting: 1,6 kN/m²
Gemakkelijk laten bezorgen
- Levertijd 5-6 weken
HORNBACH Breda
- Bestel ter plekke in jouw vestiging
- Levertijd 3-4 weken
Artikeldetails
Gebied overslaan
- Buitenbreedte wand226 cm
- Buitenbreedte incl. dakoversteek226 cm
- Buitendiepte wand234 cm
- Buitendiepte incl. dakoverstek240 cm
- Opstelmaat B x D zonder dakoverstek226 x 234 cm
- Presentatie oppervlak in m²5,3 m²
- Binnenmaten (bxd)222.0 cm x N/A
- Afgesloten ruimte11 m³
- Wanddikte19 mm
- Zijwandhoogte232 cm
- Nokhoogte232 cm
- ConstructieElementbouwsysteem
- VloerJa
- Niet meegeleverd wordenHoutbescherming, dakbedekking
- Oppervlak buitenmuur18 m²
- Dakvlak5,3 m²
- Dak sterkte19 mm
- Sneeuwbelasting1,6 kN/m²
- Dakoversteek voor0 cm
- Dakoversteek zijkant0 cm
- Dakoversteek achter6 cm
- Dakhelling2,2 °
- Materiaal dakbedekkingGeen
- Materiaal dakVuren
- Benodigde shingles (uitgaande van pakket met 3m2 inhoud, niet standaard meegeleverd)0
- Benodigde aantal shingles in m2 (niet standaard meegeleverd)0
- AanwijzingZie het gegevensblad voor meer informatie.
- Type artikelTuinhuis
- KleurfamilieAntraciet
- StandaarduitrustingVloer, Raam
- DakvormPlat dak
- MateriaalHout
- MateriaalspecificatieVuren
- Oppervlakte/OppervlaktebehandelingGekleurd
- Onder druk geimpregneerdNee
- Beglazing vensterVeiligheidsglas
- Aantal ramen2 Enkel raam
- Aantal te openen ramen0
- DeurtypeEnkele deur
- Doorgangtsbreedte91 cm
- Doorganghoogte185 cm
- Beglazing deurGeen
- Gewicht440 kg
- AKNGZ87
- EAN4742686003079
Certificaten & services
Gegevensbladen
Omschrijving
Gebied overslaan
Tuinhuisje met plat dak in kubieke, moderne stijl. Flexibel elementenbouwsysteem. De raamwandelementen kunnen naar wens worden gepositioneerd. Zeer stabiele elementframeconstructie. Dak- en vloerelementen geprefabriceerd uit 19 mm profielplaten.
Productveiligheid
Gebied overslaan
Verantwoordelijk voor productveiligheid zie .
Reviews
Gebied overslaan
Doener. We hebben je hoog zitten. En jouw mening ook. Help andere doeners en vertel wat je van onze artikelen vindt! We controleren onze reviews ook op echtheid; automatisch en door onze mensen. Betalen voor reviews? Dat doen we niet. Bekijk eenvoudig al onze reviewvoorwaarden.
